VERMOP Produktionswerke

Möchten Sie mehr darüber erfahren?
Mehr erfahren
Projektbeschreibung

Seit über 90 Jahren steht VERMOP für hochwertige Reinigungssysteme „Made in Germany“. Im Jahr 2021 hat das Unternehmen einen wichtigen Schritt in Richtung Digitalisierung seiner Betriebsstätten unternommen und eine vollständige Vermessung und Dokumentation von vier Produktionsstandorten inklusive zugehöriger Verwaltungsgebäude beauftragt.

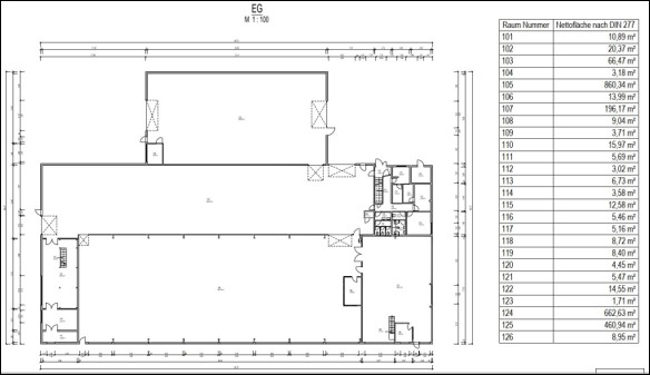
Unser Team übernahm die präzise Vor-Ort-Vermessung und erstellte detaillierte 2D-Grundrisse für alle Gebäude. Diese digitalen Pläne bilden nun die Grundlage für zukünftige Modernisierungen, das Gebäudemanagement und die Optimierung betrieblicher Abläufe.

Insgesamt umfasste das Projekt eine Bruttogrundfläche von ca. 25.300 Quadratmetern – ein deutliches Zeichen für die Innovationskraft und Zukunftsorientierung von VERMOP.

Standort
Wertheim, Deutschland
BGF
25.300 m²

Weitere Projekte

Projektreferenzen
Chemnitz, Deutschland

Erzählen Sie uns mehr über Ihre individuellen Anforderungen

Sprechen Sie mit einem führenden Experten Ihrer Branche und vereinbaren Sie eine ausführliche Beratung zu Ihrem Projekt.