Grundriss Visualisierung – Räume sichtbar machen
Table of Contents

Für verschiedene Einsatzbereiche in der Immobilien- und Planungswelt bildet die Grundriss-Visualisierung eine zentrale Grundlage. Während klassische 2D-Pläne vor allem technische Informationen liefern, ermöglichen 3D-Grundrisse ein räumliches Erleben, das einen bleibenden Eindruck hinterlässt. Auf diese Weise werden Räume realistisch und verständlich dargestellt, noch bevor der Bau überhaupt beginnt.

In diesem Artikel zeigen wir, was eine 3D-Grundriss-Visualisierung ausmacht, wie sie die Lücke zwischen Technik und Ästhetik schließt – und wie Sie damit Ihre Planungs- und Vermarktungsstrategie gezielt optimieren können. Gerne können Sie auch direkt Kontakt mit uns aufnehmen.  Gerne stehen wir Ihnen bei Fragen rund um die Grundrissvisualisierung zur Verfügung. Jetzt direkt Kontakt aufnehmen.

 

Was bedeutet Grundriss-Visualisierung?

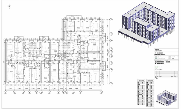
Unter einer Grundriss-Visualisierung versteht man die digitale Darstellung von Bau- oder Immobilienprojekten in visueller Form. Diese kann entweder als klassischer 2D-Grundriss oder als moderner 3D-Grundriss erstellt werden. Während 2D-Modelle vor allem technische Informationen wie Raumgrößen, Wandverläufe oder Türpositionen in der Draufsicht abbilden, geht die 3D-Visualisierung einen Schritt weiter: Sie vermittelt ein realistisches Raumgefühl und macht geplante Flächen räumlich erlebbar.

 

Ein Grundriss in 3D eignet sich hervorragend für die Vermarktung, Bauplanung oder Kundenpräsentation – insbesondere dann, wenn komplexe Inhalte auch für Personen ohne architektonischen Hintergrund verständlich vermittelt werden sollen. Wer einen 3D Grundriss erstellen lässt, kann damit sowohl Designideen als auch Nutzungsszenarien überzeugend kommunizieren. Auf diese Weise lassen sich Raumkonzepte, Designideen oder Nutzungsszenarien gezielt kommunizieren.

Wer einen 3D Grundriss online erstellen lässt, profitiert von hoher Anschaulichkeit und besserer Entscheidungsgrundlage. 

Die Visualisierung wird damit zu einem Schlüsselwerkzeug in der modernen Immobilienkommunikation – ob im Neubau, in der Bestandspflege oder in der Projektentwicklung.

 

 

Für wen ist eine Grundriss-Visualisierung besonders relevant?

Ob in der Planung, Vermarktung oder Bestandspflege – an einer professionellen Grundriss-Visualisierung führt für viele Akteure der Immobilienbranche kaum ein Weg vorbei. Sie hilft dabei, räumliche Konzepte klar und verständlich zu vermitteln – sowohl intern als auch gegenüber Kunden, Investoren oder Behörden.

Für folgende Zielgruppen ist die Visualisierung besonders relevant:

  • Architekten & Planer – zur anschaulichen Darstellung von Entwürfen und zur besseren Abstimmung mit Bauherren
  • Bauträger & Projektentwickler – zur Verkaufsförderung und Visualisierung geplanter Projekte
  • Immobilienmakler – für hochwertige Exposés, Online-Präsentationen und virtuelle Rundgänge
  • Eigentümer & Vermieter – zur Neuvermietung, Modernisierung oder beim Immobilienverkauf
  • Wohnbaugesellschaften – für strukturierte Bestandsaufnahme und klare Objektübersichten
  • Facility Manager & Hausverwalter – zur effizienten Flächenerfassung und Dokumentation
  • Kommunen & öffentliche Auftraggeber – zur Visualisierung in Bauanträgen oder Stadtentwicklungsprojekten

 

 

Vom Grundstück zur Visualisierung – wie ist der Ablauf?

Der Weg, um einen Grundriss zu visualisieren, beginnt bereits beim Grundstück – denn eine sorgfältige Flächenplanung ist die Grundlage für eine professionelle Darstellung. Für verlässliche Planungsdaten ist zunächst eine präzise Vermessung erforderlich – entweder klassisch durch Vermessungsbüros oder modern per Laserscanning. Diese Geodaten bilden die Grundlage für alle weiteren Schritte im digitalen Planungsprozess.

Darauf folgt die digitale Grundrisserstellung: Bestehende Unterlagen – beispielsweise PDF-Pläne, Papierzeichnungen oder ältere CAD-Dateien – werden professionell aufbereitet, normgerecht umgesetzt und in gängige CAD-Formate wie DWG oder Revit übertragen. Wer seinen Grundriss planen oder aktualisieren möchte, erhält so eine verlässliche, digitale Arbeitsgrundlage.

Grundriss Visualisierung

 

Optional wird anschließend ein 3D-Grundriss erstellt, der Räume realitätsnah, möbliert und visuell ansprechend darstellt. Diese Visualisierung lässt sich flexibel in Verkaufsunterlagen, Online-Portale oder Kundengespräche einbinden.

Ob für Neubauprojekte, Bestandsaufnahmen oder die Vermarktung von Immobilien: Der Weg vom Schritt, wo das Grundstück vermessen wird bis zur finalen 3D-Visualisierung ist heute ein effizienter, digital unterstützter Ablauf – und bildet die Basis für professionelle Immobilienkommunikation und fundierte Entscheidungsprozesse.

 

 

Unsere Leistungen im Bereich Grundriss-Visualisierung

Sie suchen einen zuverlässigen Partner im Bereich Grundriss-Visualisierung? Bei Grundriss Digital erhalten Sie ein umfassendes Leistungsspektrum rund um die Erstellung hochwertiger 2D- und 3D-Grundrisse – individuell, präzise und auf Ihre Anforderungen abgestimmt.

Grundriss Visualisierung

 

Ob für Exposés, Präsentationen oder interne Planungsunterlagen – Sie können zwischen möblierten und unmöblierten Varianten wählen, ganz nach Einsatzzweck. Wir visualisieren sowohl Neubauten als auch Bestandsgebäude und übernehmen auf Wunsch die digitale Aufbereitung Ihrer vorhandenen Unterlagen – etwa aus Papierplänen, PDF-Dateien oder Scans.

Darüber hinaus digitalisieren wir Baupläne, Skizzen und Bestandspläne fachgerecht und überführen diese in moderne CAD-Formate wie DWG oder Revit – ideal für Planer, Architekten und Vermarkter.

Unser erweitertes Leistungsspektrum umfasst unter anderem:

Fordern Sie jetzt ein Beispiel an oder vereinbaren Sie eine unverbindliche Beratung – wir zeigen Ihnen, wie Ihre Grundrisse zum visuellen Highlight werden.

 

Jetzt unverbindlich anfragen – Ihr 3D-Grundriss vom Profi

Sie möchten Ihre Immobilie professionell visualisieren lassen? Wir unterstützen Sie mit präziser Planung, modernster CAD-Technik und individuell gestalteten 2D- oder 3D-Grundrissen – schnell, zuverlässig und exakt auf Ihre Anforderungen abgestimmt.

Nutzen Sie unser Kontaktformular oder besuchen Sie den Servicebereich, um mehr über unsere Leistungen zu erfahren.

Jetzt 3D-Grundriss erstellen lassen – einfach, schnell und professionell.

 

Über uns

gbc digital ist ein international tätiges Ingenieurbüro mit Standorten in Deutschland, Polen und Vietnam und hat weltweit bereits über 10.000 Projekte realisiert. Wir bieten Leistungen in den Bereichen Tragwerksplanung, Rechenzentrumsplanung, Infrastruktur- und Brückenbau, BIM & Scan-to-BIM sowie Projekt- und Baumanagement an. Durch die Verbindung deutscher Ingenieurqualität mit internationaler Expertise schaffen wir für unsere Auftraggeber nachhaltige, sichere und effiziente Lösungen.

Weitere News

Professionelle 2D- & 3D-Gebäudevermessung, CAD- & BIM-Modellierung aus Berlin. Grundriss Digital liefert präzise, schnelle und zuverlässige Gebäudeaufnahmen.
Erfahren Sie, wie Sie Ihren Wohnungsgrundriss digital, präzise und schnell erstellen lassen – ideal für Exposés, Verkauf oder Renovierung.
In der Bau- und Immobilienbranche spielen digitale Grundrisse eine zentrale Rolle und bilden die Grundlage für nahezu alle Projektphasen. Von der Entwurfsplanung bis zur Vermarktung und Umgestaltung bestehender Objekte sind sie unverzichtbare Werkzeuge.

Digitalisation and changing market conditions have fundamentally changed the construction and real estate industry. Processes that used to be analogue and time-consuming can now be mapped much more efficiently, data-based and, above all, transparently.