Bezirksamt Spandau

Möchten Sie mehr darüber erfahren?
Mehr erfahren
Projektbeschreibung

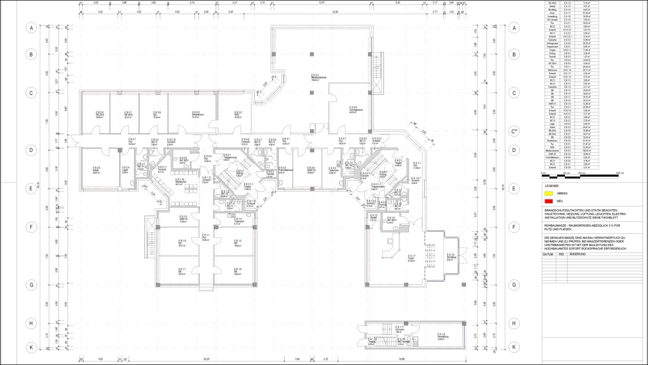
Im Herzen des Berliner Bezirks Spandau wird ein bedeutender Schritt in Richtung digitaler Transformation unternommen. Das Bezirksamt Spandau hat eine Initiative gestartet, um die Verwaltung seiner Büroflächen – Etage für Etage – zu modernisieren und vollständig zu digitalisieren.

Im Rahmen dieser Initiative erstellt unser Team präzise 2D-Grundrisse für mehrere Büroebenen mit jeweils 400 bis 1.000 Quadratmetern Nutzfläche. Diese digitalen Pläne bilden die Grundlage für ein effizientes Facility Management und ermöglichen eine intelligentere Planung, Instandhaltung und Ressourcenallokation.

In enger Zusammenarbeit mit der Abteilung Facility Management des Bezirksamtes gestalten wir eine Zukunft mit, in der öffentliche Gebäude präziser und transparenter verwaltet werden.

Standort
Berlin
Bruttogeschossfläche
400–1.000 qm

Weitere Projekte

Projektreferenzen

Erzählen Sie uns mehr über Ihre individuellen Anforderungen

Sprechen Sie mit einem führenden Experten Ihrer Branche und vereinbaren Sie eine ausführliche Beratung zu Ihrem Projekt.