Bürogebäude Hofwiesenstrasse 370

Möchten Sie mehr darüber erfahren?
Mehr erfahren
Projektbeschreibung

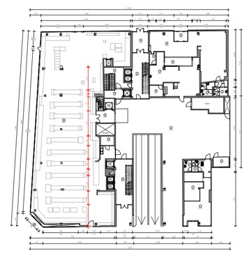
Im Jahr 2022 wurde ein Bürogebäude an der Hofwiesenstrasse 370 in Zürich-Oerlikon umfassend dokumentiert. Das Gebäude umfasst drei Untergeschosse, ein Erdgeschoss, fünf Obergeschosse sowie ein Attikageschoss.

Unsere Leistungen umfassten die Vor-Ort-Vermessung und die Erstellung detaillierter 2D-Zeichnungen – darunter Grundrisse, Nord- und Südansichten sowie die Gebäudeschnitte A-A und B-B. Darüber hinaus führten wir eine Flächenberechnung gemäß SIA Norm 416 durch. Abgeschlossen wurde das Projekt mit einem strukturierten 3D-Gebäudemodell im IFC-Format zur weiteren BIM-Nutzung.

Die dokumentierte Bruttogrundfläche des Objekts beträgt ca. 9.200 Quadratmeter.

Standort
Zürich, Schweiz
Bruttogeschossfläche
9.200 qm

Weitere Projekte

Projektreferenzen
Gronau, Deutschland
Brandenburg, Deutschland
Berlin, Deutschland
Erlangen, Deutschland

Erzählen Sie uns mehr über Ihre individuellen Anforderungen

Sprechen Sie mit einem führenden Experten Ihrer Branche und vereinbaren Sie eine ausführliche Beratung zu Ihrem Projekt.