Wirtschaftszentrum Gronau

Möchten Sie mehr darüber erfahren?
Mehr erfahren
Projektbeschreibung

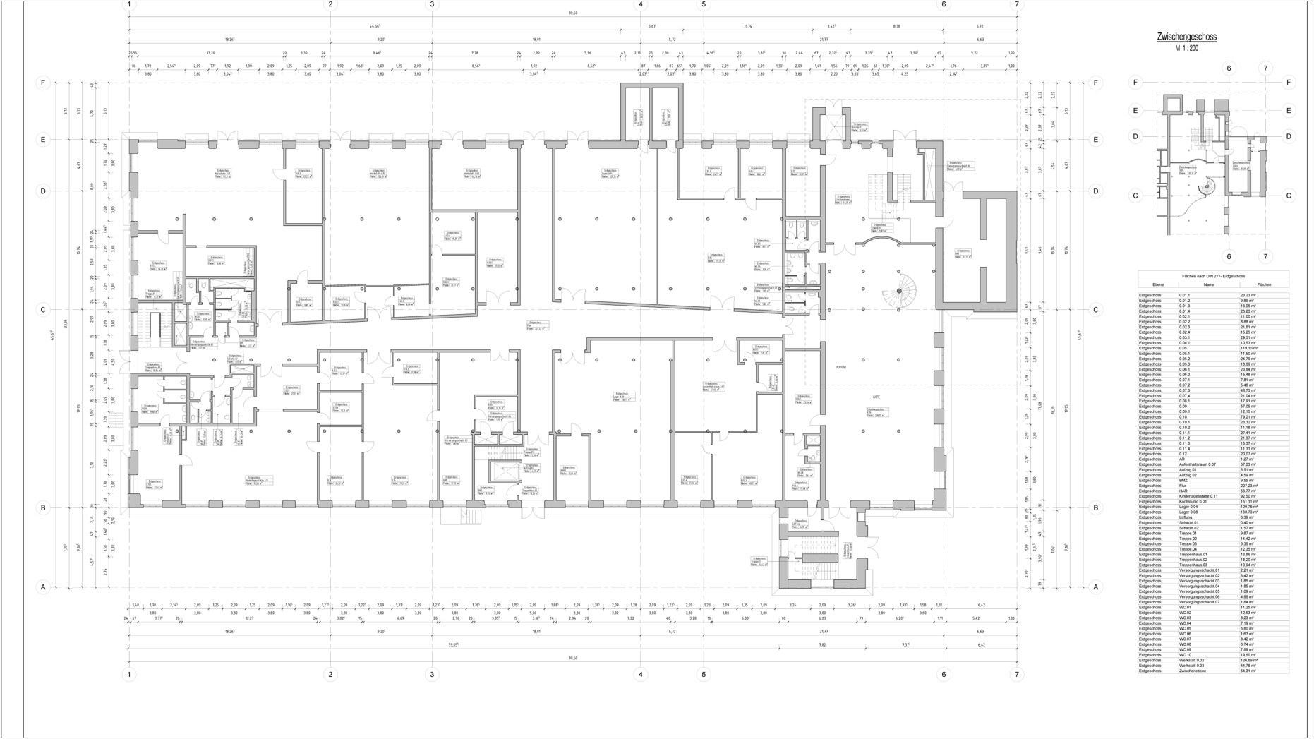
In der Stadt Gronau im Kreis Borken steht ein denkmalgeschütztes Bürogebäude – ein architektonisches Zeugnis vergangener Zeiten, das nun den Weg in die digitale Zukunft einschlägt. Das Gebäude umfasst ein Kellergeschoss sowie vier Obergeschosse und sollte im Rahmen einer brandschutztechnischen Sanierung modernisiert werden.

Im Jahr 2021 wurden wir beauftragt, dieses Vorhaben durch eine umfassende digitale Bestandserfassung zu unterstützen. Unsere Leistungen umfassten die präzise Vor-Ort-Vermessung sowie die Erstellung detaillierter 2D-Grundrisse und eines 3D-Gebäudemodells. Diese Daten bildeten die Grundlage für die Planung und Umsetzung der Brandschutzmaßnahmen – unter besonderer Berücksichtigung des denkmalgeschützten Charakters des Gebäudes.

Mit einer Nutzfläche von rund 10.000 Quadratmetern zeigt dieses Projekt, wie historische Bausubstanz durch digitale Methoden bewahrt und zugleich für moderne Anforderungen ertüchtigt werden kann.

Standort
Gronau, Deutschland
Bruttogeschossfläche
10.000 qm

Weitere Projekte

Projektreferenzen

Erzählen Sie uns mehr über Ihre individuellen Anforderungen

Sprechen Sie mit einem führenden Experten Ihrer Branche und vereinbaren Sie eine ausführliche Beratung zu Ihrem Projekt.