LWG Lausitzer Wasser GmbH & Co. KG Berliner Straße 20-21

Möchten Sie mehr darüber erfahren?
Mehr erfahren
Projektbeschreibung

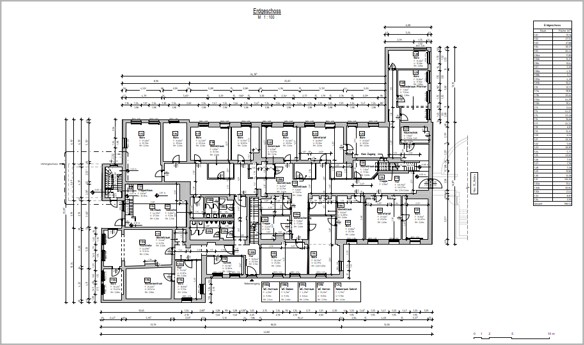
Bei diesem Projekt wurden wir damit betraut, die architektonische Essenz eines Komplexes aus mehreren Büro- und Verwaltungsgebäuden einzufangen. Im Zentrum steht Gebäude 20, eine Mischung aus Geschichte und Moderne – seine ursprüngliche Struktur wird durch einen neueren Anbau elegant ergänzt. Umgeben von einer Reihe von Stützstrukturen – Gebäude 21, einem Kontrollpunkt, Garagen und verschiedenen Lagerräumen – bilden sie zusammen die gesamte Betriebslandschaft.

Unsere Aufgabe begann vor Ort mit detaillierten Messungen, um sicherzustellen, dass jede Ecke und jeder Korridor präzise dokumentiert wurde. Anschließend wechselten wir in die digitale Welt und übersetzten den physischen Raum in präzise 2D-Grundrisse. Diese digitalen Layouts dienen nun als zuverlässige Grundlage für zukünftige Planungen, Renovierungen oder das Facility Management.

Insgesamt umfasste das Projekt eine Gesamtnutzfläche von rund 5.760 Quadratmetern – jede einzelne Fläche wurde nun kartiert und für das nächste Kapitel im Lebenszyklus des Standorts vorbereitet.

Standort
Deutschland
Bruttogeschossfläche
5.760 qm

Weitere Projekte

Projektreferenzen
Gronau, Deutschland
Brandenburg, Deutschland
Berlin, Deutschland
Erlangen, Deutschland

Erzählen Sie uns mehr über Ihre individuellen Anforderungen

Sprechen Sie mit einem führenden Experten Ihrer Branche und vereinbaren Sie eine ausführliche Beratung zu Ihrem Projekt.